Base Sete

  • Projects
  • About
    • About Us
    • Prizes
  • News
  • Contact
  • date
  • scale
  • name
  •  
  • Commercial
  • Cultural
  • Educational
  • Housing
  • Institutional
  • interior design
  • Sport
  • Transport
  • Urbanism
Base Sete
português
facebookyoutubeinstagrampinterest

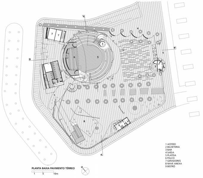
Circo Voador

Rio de Janeiro, rj, Brazil

2001 / 2004

1st place in competition

1.143m²

prev x next
pinterestfacebooktwitter Cultural

Architecture: Celio Diniz, Eduardo Canellas, Eduardo Dezouzart and Tiago Gualda

[+]